Property Details

Description

Price : $375,000.00 MLS® : X13054750 / 263 Clarke Road, London East, ON N5W 5E7

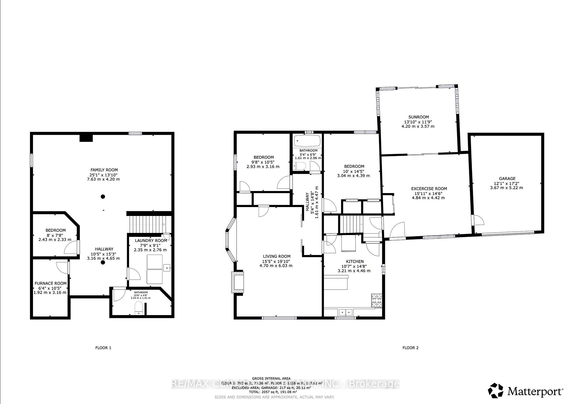
Property is structurally sound & solid but very rough inside & priced accordingly. Outstanding potential for equity appreciation for experienced renovators and/or very handy buyers. Spacious (1,164 sq. ft. as per MPAC) aluminum sided bungalow (with one section vinyl sided at rear) with attached garage & long paved double wide driveway to accommodate multiple vehicles on a fabulous 75' x 248' mature & very pretty lot. Both bathrooms are in a state of partial renovation. Seller will leave any existing building materials. Main floor features Kitchen, L-shaped Living/Dining with fireplace in Living Room, two spacious bedrooms & bath. Family Room between garage & main structure, sunroom at rear. Lower level provides an additional bedroom & bathroom as well as rec room/family room area-this area has potential to be a totally separate suite/lower level apartment for income or extended family purpose. Decent mechanicals with 100 amp service & breaker panel, rental water heater circa 2014, & furnace & central air approximately 8-10 years old. Get here quickly if you're looking for this type of property & opportunity-it is not likely to last at this price.

Location Description

Clarke & Royal

Property Details
  • Community: East H
  • Property Type: Owner/Residential Freehold
  • Bedrooms: 3
  • Bath: 2
  • Garages: Attached
  • Annual Property Taxes : $ 3420
Buildig Features
  • Foundation Type: Block
  • Counstruction Material : Vinyl Siding-Aluminum Siding
  • Total Parking Space : 7
  • Parking Type : Attached
Features
  • Heating : Forced AirGas
  • Sewer : Sewer ,
Land (Lot Features)
  • Frontage: 75 sq.ft
  • Land Depth: 248sq.ft

Listing Contracted With: RE/MAX CENTRE CITY REALTY INC.