Property Details

Description

Price : $899,000.00 MLS® : E13039850 / 400 Manse Road, Toronto E10, ON M1E 3V6

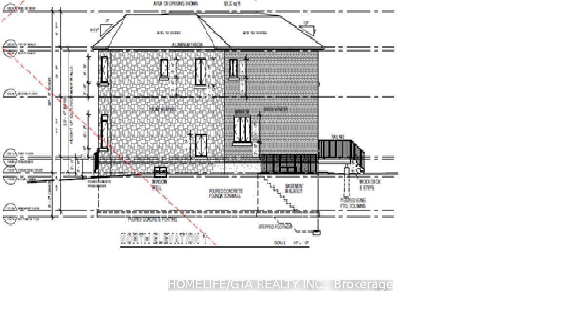
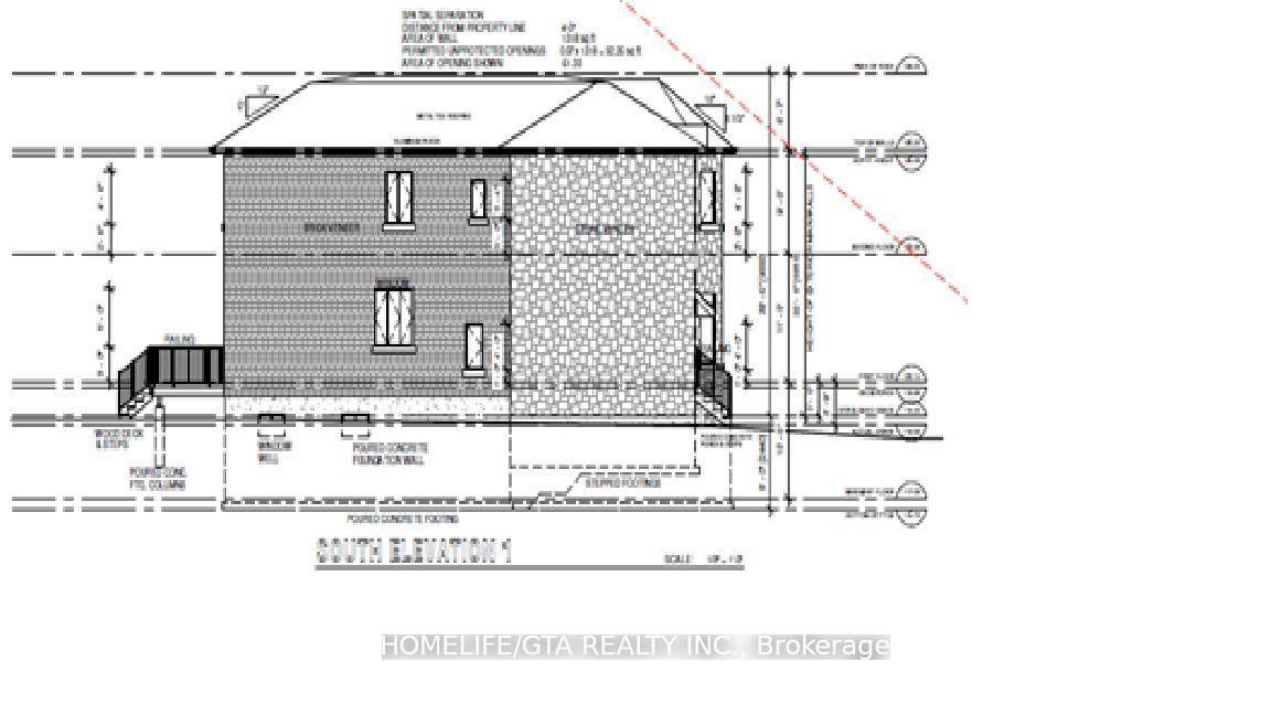
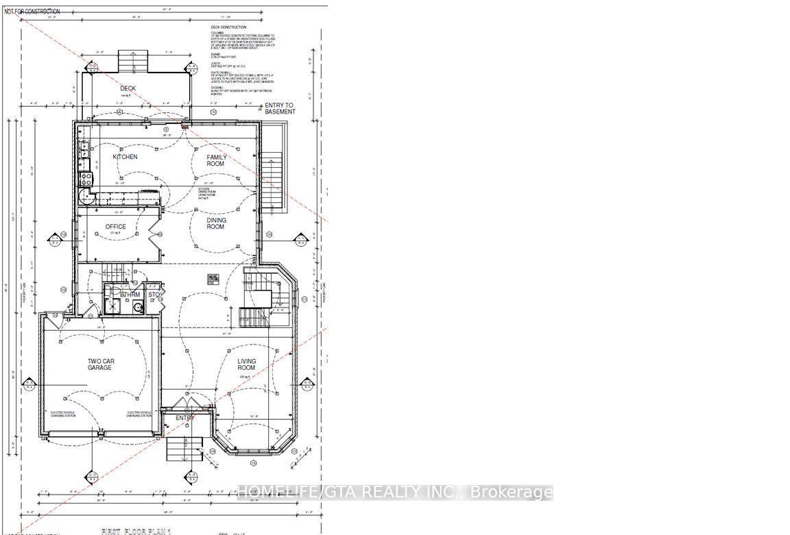
Prime Development Opportunity - 400 Manse Road. An Exceptional opportunity to build a luxury custom home in a desirable and established neighbourhood. This newly severed premium lot measures approximately 50 X150 Ft and is being sold with architectural drawings for spacious custom residence, allowing the next owner to bring a remarkable vision to life. The property had already received city-approved severance and development approvals, saving month of planning, design, and approval time. Builders can move forward quickly and begin construction without unnecessary delays. Surrounded by quality homes and located close to schools, parks, shopping and transit, this property offers outstanding value and potential for builders, investors or end users looking to create a luxury custom home. A rare opportunity to secure a ready-to-build lot in a sought-after neighbourhood. Important Note: Two severed, equal-size lots available under separate MLS listings (400 and 402 Manse Road). Rare opportunity to purchase one or both properties. A renovated 4 + bedroom home with large, spacious living area is currently located on the properties. Buyer purchasing both lots may keep the home as a rental or holding property.

Location Description

Kingston Road/ Morningside Ave

Property Details
  • Community: West Hill
  • Property Type: Vacant/Residential Freehold
  • Garages: Attached
  • Annual Property Taxes : $ 1
Buildig Features
  • Parking Type : Attached
Features
  • Heating : Forced AirOil
  • Sewer : Sewer ,
  • Cooling :
Land (Lot Features)
  • Frontage: 100 sq.ft
  • Land Depth: 150sq.ft

Listing Contracted With: HOMELIFE/GTA REALTY INC.